Description de l'offre
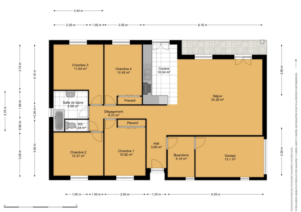
Sur les hauteurs de L’Arbresle, à proximité immédiate de la commune prisée de Saint-Germain-Nuelles, cette maison bénéficie d’un environnement paisible, d’une excellente accessibilité avec l’A89 gratuite et deux lignes de train vers Lyon, et d’un cadre de vie recherché pour sa qualité et sa praticité au quotidien. D’une surface habitable de 101 m², cette maison entièrement de plain-pied séduit par sa fonctionnalité et sa luminosité. La pièce de vie de 44 m², ouverte sur une cuisine conviviale, offre un bel espace de réception avec accès direct à une grande terrasse, idéale pour profiter des beaux jours. L’espace nuit se compose de quatre chambres aux surfaces équilibrées : 11,54 m² ; 10,92 m² ; 10,45 m² et 10,37 m². Une salle de bains avec fenêtre et un WC séparé complètent l’ensemble. Côté pratique, la maison dispose d’une buanderie avec fenêtre (possibilité d’ouverture sur la pièce de vie, mur non porteur), d’un garage et d’un carport double réalisé en 2022, permettant le stationnement de deux véhicules. Édifiée sur une parcelle de 810 m² en zone Uc, la propriété est piscinable et offre la possibilité d’une extension selon votre projet, sous réserve d’accord de la commune. Confort et prestations techniques : Construction de 1997 Huisseries double vitrage Chauffage au gaz avec chaudière à condensation (2019) Conduit de cheminée existant (possibilité d’installation d’un poêle à bois ou granulés) Combles réisolés depuis la construction Un bien rare sur le secteur, idéal pour une famille à la recherche d’un cadre de vie serein et fonctionnel, à proximité immédiate de Saint-Germain-Nuelles et des commodités de L’Arbresle, tout en restant à moins de 30 minutes de Lyon. Visite virtuelle disponible sur notre site ou sur demande. Pour tous renseignements, contactez votre agence ARLIM au 04 74 01 00 19. Votre agence ARLIM, c'est une équipe de 5 personnes à votre service avec Camille THIBAUD, Lionel BRESSAN, Jérémy PUPIER, , Adeline THOINET, et Cyndie MARCHAND. Les informations sur les risques auxquels ce bien est exposé sont disponibles sur le site Géorisques : www.georisques.gouv.fr
