Description de l'offre
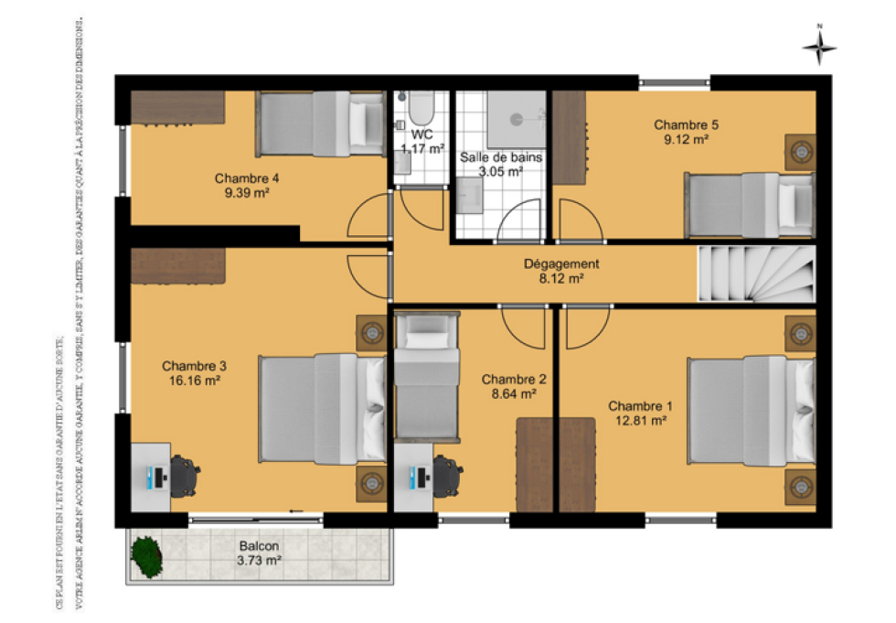
En exclusivité et idéalement située à proximité immédiate des commodités, des écoles et de la gare de L'Arbresle accessibles à pied, cette maison individuelle offre une combinaison parfaite entre praticité et confort. D'une surface totale de 130 m² avec ses 5 chambres et ses 2 salles d’eau, cette propriété est idéale pour accueillir une famille ou pour ceux qui ont besoin d’espaces supplémentaires tels qu’un bureau ou une salle de jeux. La maison est fonctionnelle et bénéficie d’huisseries en double vitrage, assurant une bonne isolation thermique et phonique. Le système de chauffage au gaz garantit une performance énergétique optimale, avec un classement D au Diagnostic de Performance Énergétique (DPE), contribuant à la réduction des coûts énergétiques. Le terrain clos et arboré de 714 m² offre de nombreuses possibilités d’aménagement. Il est situé en zone Ub du Plan Local d’Urbanisme (PLU) de la commune, ce qui signifie qu'il est constructible et piscinable, permettant ainsi d’envisager des extensions ou la création d’un espace détente avec piscine. Une cabane de jardin fait office de dépendance, idéale pour le rangement ou pour un atelier. De plus, la maison est connectée à la fibre optique, garantissant un accès internet rapide et stable, un atout supplémentaire pour les familles ou ceux qui télétravaillent. Maison reliée au tout à l'égout. Visite virtuelle disponible sur notre site ou sur demande. Pour tous renseignements, contactez votre agence ARLIM au 04 74 01 00 19. Votre agence ARLIM, c'est une équipe de 5 personnes à votre service avec Jérémy PUPIER, Camille THIBAUD, Adeline THOINET, Lionel BRESSAN et Cyndie MARCHAND. Les informations sur les risques auxquels ce bien est exposé sont disponibles sur le site Géorisques : www.georisques.gouv.fr
